Bilocale in vendita

Comacchio, Via Caravaggio - Lido Di Spina
€ 103.000
Prezzo aggiornato
2 locali 2 locali
43 Mq 43 Mq
1 bagno 1 bagno

Bilocale in vendita

Comacchio, Via Caravaggio - Lido Di Spina

Descrizione annuncio

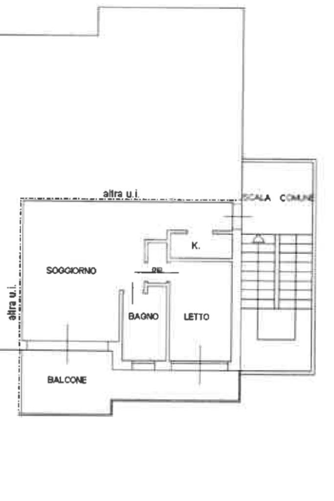
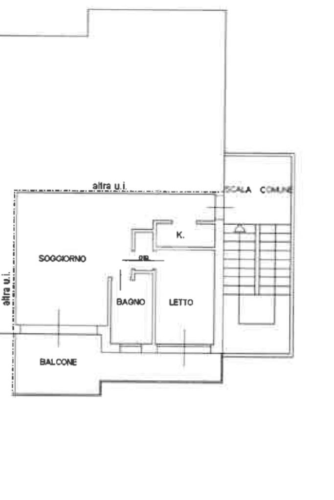
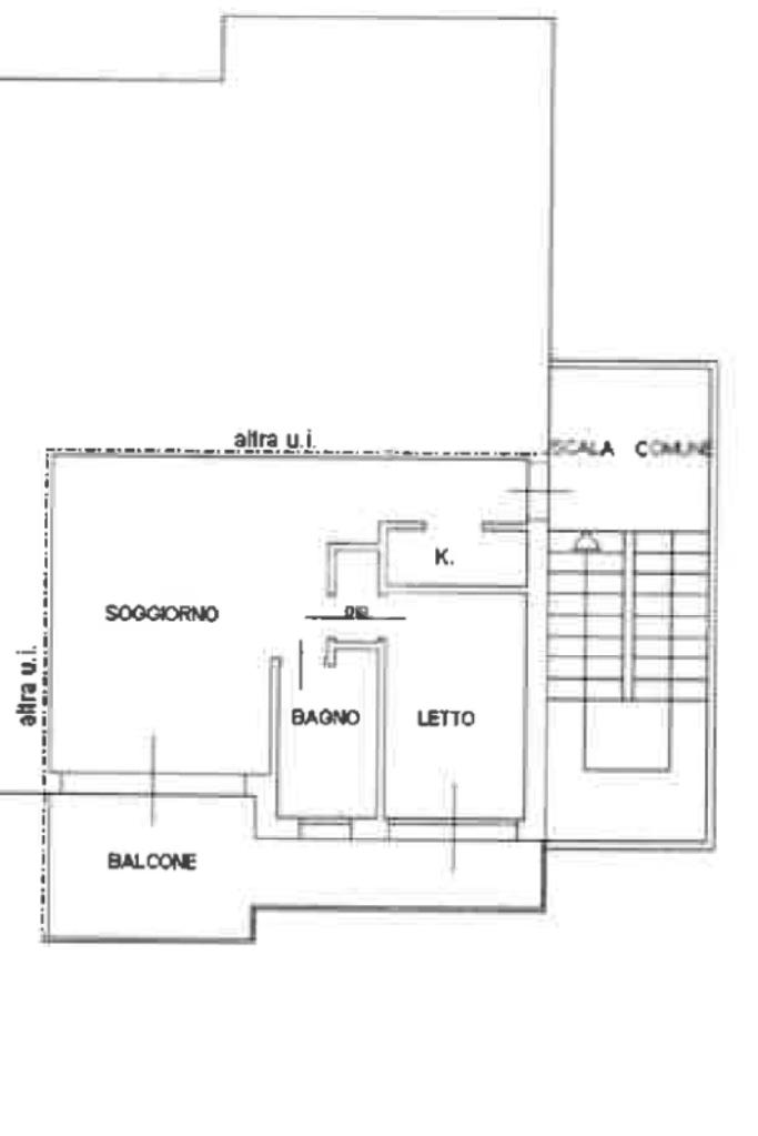
Nel pieno centro di Lido di Spina, all’interno di un residence immerso nel verde della pineta, proponiamo bilocale di 43 mq al primo piano, perfetto come casa vacanza o investimento.

L’appartamento si compone di:
• Cucinotto separato
• Ampia e luminosa zona giorno con accesso al balcone vivibile
• Camera da letto matrimoniale finestrata
• Bagno con finestra e box doccia

Il residence offre una splendida piscina condominiale e si trova nella piazza principale, a pochi passi da negozi, ristoranti e servizi.

Punti di forza: posizione centrale, vista sul verde, contesto tranquillo e curato, balcone spazioso.
Immobile in ottime condizioni originali.

Ideale sia come seconda casa al mare, o come investimento personale!

Contattaci per fissare una visita e scoprire il tuo angolo di relax a Lido di Spina! A feha0 oppure ai nostri recapiti 0533-700787 oppure al 3384128214

Mostra tutto

Nelle vicinanze

Trasporto pubblico Trasporto pubblico
MICHELANGELO 173 [094]
MICHELANGELO 173 [094]
140 m
Lido Spina Caravel-Gallia
Lido Spina Caravel-Gallia
240 m
Ricariche auto elettriche Ricariche auto elettriche
Eneldrive Spiaggia
2,2 Km
Scuole Scuole
Istituto d'Istruzione Superiore "Remo Brindisi"
2,9 Km
Farmacia Farmacia
Lido
360 m
Farmacia Lido 2
1,0 Km
Farmacia Lido
2,1 Km
Supermercati Supermercati
Despar
380 m
Supermercati
730 m
Supermercato Sisa
960 m
Crai
2,0 Km
Negozi Negozi
Pasticceria Le Perle
1,9 Km
Julian
2,0 Km
Pasta fresca
2,0 Km
Made in Italy
2,1 Km
Negozi
2,1 Km
Bar Bar
Angolo della Bocca
380 m
Bar
750 m
Barracuda
820 m
Bar "Carla"
1,9 Km
Imperial Bar
2,0 Km
Ristoranti Ristoranti
Pizzeria "La Pace Mare"
110 m
Baia di Maui
610 m
le Ghiandaie
860 m
Ristorante Pizzeria "Il villaggio del pescatore"
880 m
Ristorante Pizzeria "Fieramosca"
960 m
Mostra tutto

Caratteristiche

Rif.:
61131633
Piano:
1 di 2 (Piano basso)
Balconi:
1
Camere da letto:
1
Arredamento:
Parziale
Condizionamento:
Assente
Mostra tutto
Prezzo Prezzo
€ 103.000
Rata mutuo Rata mutuo
€ 481 / mese
Spese annue Spese annue
€ 1.000
Proponi il tuo prezzoProponi il tuo prezzo
Immobile valutato con T·Valuta

Classe Energetica

G
G
G
G
G
G
G
G
G
Anno di costruzione:
1980
Riscaldamento:
Assente

Prezzo ridotto di €1 (4%%)

Ti interessa visionare l'immobile?

Fissa un appuntamento  Fissa un appuntamento

Richiedi informazioni

Clicca su Leggi per aprire l'informativa
* Questi campi sono obbligatori

Calcola il tuo mutuo

Semplice e senza impegno
Anticipo

( % )
Mutuo

( % )

pochi semplici passi

inserisci i tuoi dati
Questionario completato
Grazie per aver richiesto un appuntamento senza impegno con un nostro Consulente del Credito e Assicurativo.

Hai inserito correttamente tutti i dati necessari e a breve riceverai una e-mail con un link da convalidare per inviare i tuoi dati.
Affiliato
Studio Medusa Srl
Largo Caravaggio, 21 44022 Comacchio (FE)

Il nostro staff


  • Federico Chiarelli
    Collaboratore

  • Sabina Lugbunari
    Collaboratrice

  • Federico Sansone
    Collaboratore
Largo Caravaggio, 21 44022 Comacchio (FE)
Zona: Lido di Spina-Lido degli Estensi
Mostra su mappa
Orari: Dal lunedì al venerdì dalle ore 9:00 alle ore 13:00 e dalle ore 15:00 alle ore 19:00. Sabato dalle ore 9:00 alle ore 13:00 e dalle ore 15:00 alle ore 18:00
Affiliato
Studio Medusa Srl
Largo Caravaggio, 21 44022 Comacchio (FE)

2026 Tecnocasa Franchising S.p.A. - P. IVA 08365160152 - Via Monte Bianco 60/A 20089 Rozzano (MI). Ogni agenzia ha un proprio titolare ed è autonoma. Privacy policy | Policy utilizzo | Cookie policy